Потолки из гипсокартона — правильный расчет и фото

Потолки из гипсокартона на сегодняшний день – самый удобный и простой способ создать в своей квартире или в доме неповторимый дизайн. Благодаря этому материалу, дизайнерские возможности были расширены до невозможности.

Зашить потолок квартиры гипсокартоном – самый простой вариант. Потолок можно сделать в несколько уровней, декорируя не только разным цветом, но и комбинацией осветительных приборов, а также самими гипсокартонными конструкциями.

Кроме того, разнообразят дизайн всевозможные вставки – например, элементы натяжного потолка (фото смотрите ниже).

Фото 1 - Потолки из гипсокартона – самый удобный и простой способ создать неповторимый дизайн

Фото 1 — Дизайнерские потолки из гипсокартона – самый удобный и простой способ создать неповторимый дизайн

Фото 2 - Разнообразят дизайн всевозможные вставки – например, элементы натяжного потолка

Фото 2 — Разнообразят дизайн всевозможные вставки – например, элементы натяжного потолка

Фото 3 - Потолок можно декорировать также самими гипсокартонными конструкциями

Фото 3 — Потолок можно декорировать также самими гипсокартонными конструкциями

Фото 4 - Потолок можно сделать в несколько уровней, декорируя комбинацией осветительных приборов

Фото 4 — Потолок можно сделать в несколько уровней, декорируя комбинацией осветительных приборов

При желании, вы можете украсить потолок бегущими облаками из гипсокартона, солнцем, сказочным замком или драконом из того же материала. А можете и ограничиться криволинейными конструкциями или простыми геометрическими фигурами.

С помощью грамотно размещенной подсветки, можно устроить на потолке звездное небо или заставить его «парить» (эффект достигается при помощи светодиодных лент или светильников, скрытых в бортиках-нишах по периметру потолка или на одном из ярусов).

Потолки из гипсокартона обладают звукоизолирующими свойствами.

Они дают возможность разнообразить осветительную систему квартиры, спрятать дефекты настоящего потолка или те же коммуникации (провода или трубы).

Потолки из гипсокартона не настолько сложны в монтаже, чтобы с этим делом не мог справиться не самый подготовленный и подкованный в ремонте человек. Но некоторые навыки все же нужны, да и знать нюансы установки такого потолка стоит.

Фото 5 - При необходимости, профиля для металлического каркаса можно разрезать ножницам по металлу

Фото 5 — При необходимости, профиля для металлического каркаса можно разрезать ножницам по металлу

Расчет потолка из гипсокартона

Перед тем, как начинать работы, само собой, нужно произвести расчет потолка из гипсокартона.

Начнем мы с проекта одноуровневого потолка. Он наиболее прост и доступен для начинающих строймастеров. Позже, если заходите, вы сможете углубиться в более сложные конструкции. Но начинать, согласитесь, лучше с азов. В конце статьи вы сможете просмотреть чертежи и эскизы вариантов монтажа гипсокартонного потолка.

Перед тем, как начинать, напомним еще несколько потолочных нюансов.

Во-первых, посмотрите на высоту потолка над головой. А теперь представьте, сколько сантиметров вы готовы пожертвовать во имя искусства? Так, навскидку, для установки точечных светильников потребуется как минимум 10 см пространства. Если же вы намерены спрятать в «двойное дно» вашего потолка вентиляционные короба, электропроводку или трубы, то и того больше.

Далее, не забудьте пригласить верного друга для монтажа каркаса. Поскольку листы гипсокартона серьезно тяжелее пушинки, то для работы нужны как минимум двое. В крайнем случае, вы можете взять в аренду подъемник для гипсокартона. Отметим, что стандартные размеры гипсокартона от фирмы Knauf – 2500х1200х12,5 мм, что составляет три квадратных метра. Вес листа гипсокартона составляет примерно 29 кг.

Сразу вооружитесь необходимым инструментом – электродрелью, строительным уровнем (2-2,5 м) перфоратором, молотком, инструментом для штукатурных работ и ножницам по металлу.

Фото 6 - Монтаж каркаса, составные части

Фото 6 — Монтаж каркаса, составные части

Основная часть расчетов

Первым делом, рассчитаем количество материала. Для этого мы измерим длину и ширину помещения, в котором планируется установка потолка. Обязательно, померяйте все четыре стороны комнаты. Если размеры стен, расположены друг напротив друга, не одинаковы, следует принять за основу ту ширину и длину, которая больше.

Какие материалы, кроме, собственно, гипсокартона, нам вообще понадобятся? Для металлического каркаса нам нужны:

  • профиль стоечный 60*27
  • профиль направляющий 27*28
  • подвес прямой
  • подвес «краб» (если ширина комнаты больше 3 м)
  • саморезы 3,5*11 (для крепления профилей друг к другу)
  • дюбеля с шурупом 8*80 (для крепежа прямых подвесов при бетонном потолке) или саморезы по дереву 4*60 (если потолок деревянный)

Рассмотрим на конкретном примере

Возьмем стандартную комнату 3*6 метров. Схема расчетов.

Стоечные профиля — длину комнаты делим в метрах на 0,6 и отнимаем от частного 1. В нашем случае: (6/0,6)-1 = 9 штук. Кроме этого нам понадобятся дополнительные профили для упрочнения каркаса. Снова считаем количество стоечных профилей. Для этого делим теперь уже ширину комнаты на 0,6 и отнимаем от частного 1. Пример: (3/0,6)-1 = 4. К первому результат прибавляем единицу (9+1 = 10), умножаем на итог второго расчёта (10*4 = 40), получившееся число умножаем на 0,6 (40*0,6 = 24) и, наконец, делим результат на 3 (длину профиля). Получаем 24/3 = 8 штук. То есть общее количество металлопрофиля 60*27 у нас получится – 9+8= 17 штук.

Теперь посчитаем направляющий профиль. Подсчитайте периметр комнаты и итог делим на длину профиля (3 м). результат округляем в большую сторону до целого. ((3+6)*2)/3 = 6 штук – число профиля 27*28, для монтажа подвесного потолка. Но, лучше приобрести 9 профилей, а не 6, поскольку понадобятся еще дополнительные профили.

Перейдем к прямым подвесам. Делим ширину комнаты на 0,5 (3/0,5 = 6) и умножаем результат на количество профиля 60*27 в самом первом расчёте, то есть на 9. Итого получаем: 6*9 = 54 штуки.

И, наконец, посчитаем, сколько же для такого потолка понадобится листов гипсокартона. Итак, размеры листа 2,5*1,2 метра. Это значит, что в длину нашей воображаемой комнаты вмешается 5 листов ровно (6/1,2 = 5). Однако, ширина на полметра больше, чем длина гипсокартона. Выходит, что нам понадобятся ещё 5 кусков по пол метра (еще один лист). В итоге, нам понадобится 6 ГКЛ.

Фото 7 - Подвес прямой

Фото 7 — Подвес прямой

Теперь берем самоклеющуюся сетку серпянку для заделки швов между листами ГКЛ и беремся считать, сколько же нам понадобится саморезов и дюбель-шурупов.

Схема монтажа потолка из гипсокартона

Сейчас мы разберем схему монтажа каркаса для нашего будущего подвесного потолка.

Итак, каркас:

Для каркаса нужна предварительная разметка. Ее можно сделать с помощью гидроуровня или строительного уровня. По всему периметру комнаты размечаем стены для монтажа направляющих профилей.

Теперь у нас есть ровная линия по всему периметру комнаты. Берем направляющий профиль и крепим к стенам дюбель-шурупами 8*80 (если стены из бетона или кирпича) или саморезами 3,5(или 4)* 60 (если стены из дерева). Закрепляем профиль через каждые полметра.

Теперь крепим профиль 60*27. Поскольку у воображаемой комнаты ширина комнаты совпадает с длиной профиля (3 м), то профиль не нужно обрезать или наращивать. Отмечаем от стены 0,6 метра и крепим стоечный профиль к направляющему «клопами»-саморезами с обеих сторон. И так на всю длину комнаты. Старайтесь, чтобы расстояние от стены до середины второго профиля 60*27 составляло строго 1,2 метра – края двух соседних листов гипсокартона должны крепиться к одному профилю каркаса.

Далее выравниваем прямыми подвесами стоечные профиля. Для этого размечаем места для крепления подвесов и сгибаем прямой подвес так, чтобы получилась буква П. После этого делаем отметки над профилем 60*27 в местах, где будет крепиться подвес с интервалом 0,4 метра. С помощью одного прямого подвеса размечаем места крепления по всему потолку.

Откручиваем стоечный профиль и отодвигаем его в сторону (для удобства крепления подвесов). Подвесы крепим дюбель-шурупами (саморезами по дереву). На один подвес — 2 самореза. После этого, с помощью уровня выравниваем профиль и крепим по уровню его к подвесу с двух сторон «клопами». На один подвес уйдет примерно 4 самореза.

Фото 8 - Работой над подвесным потолком заниматься лучше в паре

Фото 8 — Работой над подвесным потолком заниматься лучше в паре

Теперь займемся упрочнением подвесной системы. Соединяем два соседних профиля 60*27 поперечиной. Для поперечин возьмем многострадальный стоечный профиль. Сначала крепим отрезки длиной 0,1 метра из направляющего профиля напротив друг друга к торцу стоечного профиля «клопами» (2 штуки на один участок). Потом вставляем в них подготовленные поперечины. Поперечины делаются через каждые 0,6 метра. Каркас готов.

Теперь крепим листы ГКЛ к каркасу саморезами 3,5*25(32) с мелкой резьбой. Советуют брать саморезы чёрного цвета из оксидированного металла. На один лист гипсокартона придется 100 саморезов.

Получившийся потолок грунтуем универсальным грунтом (Ceresit или Knauf). Когда грунт высохнет, клеим серпянку на стыки между плитами гипсокартона и шпаклюем потолок шпаклевкой от производителей Knauf, Юнис или Старатели.

Потолки из гипсокартона. Цены

Во сколько обойдутся нам потолки из гипсокартона? Цены будут отличаться в зависимости от региона, от того, сами ли вы будете выполнять ремонт или позовете профессионалов, и от выбранных материалов.

Что касается стоимости самих работ, то в Киеве за 1 м.кв. возьмут 50-80 грн, в Москве – от 420 руб.

Сколько стоят материалы?

По материалам, из самого затратного. Обычные листы гипсокартона Knauf стоят от 190 руб. за единицу в Москве, от 45 грн. за единицу в Киеве.

Профили в среднем от 13-15 грн за штуку в Киеве, и от 30 руб. за штуку в Москве.

Чертежи и эскизы монтажа подвесного потолка

Рисунок 1 — План подвесных потолков из ГКЛ в три уровня

Рисунок 1 — План подвесных потолков из ГКЛ в три уровня

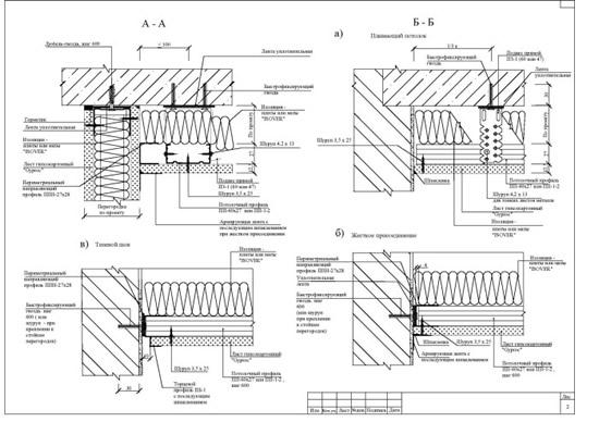
Рисунок 2 — Схема монтажа потолка из гипсокартона

Рисунок 2 — Схема монтажа потолка из гипсокартона

Рисунок 3 — Схема монтажа потолка ПП1 из гипсокартона

Рисунок 3 — Схема монтажа потолка ПП1 из гипсокартона

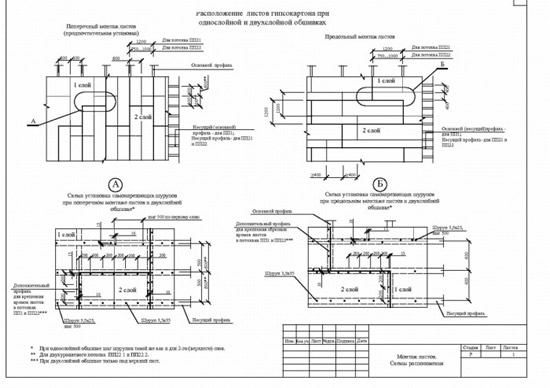
Рисунок 4 — Схемы расположения листов гипсокартона при однослойной и двухслойной обшивках

Рисунок 4 — Схемы расположения листов гипсокартона при однослойной и двухслойной обшивках

Рисунок 5 - Двухуровневый способ монтажа потолка из ГКЛ - П112

Рисунок 5 — Двухуровневый способ монтажа потолка из ГКЛ — П112

Рисунок 6 — Схема подвеса направляющих

Рисунок 6 — Схема подвеса направляющих

Рисунок 7 - Одноуровневый способ монтажа потолка из ГКЛ - П113

Рисунок 7 — Одноуровневый способ монтажа потолка из ГКЛ — П113